
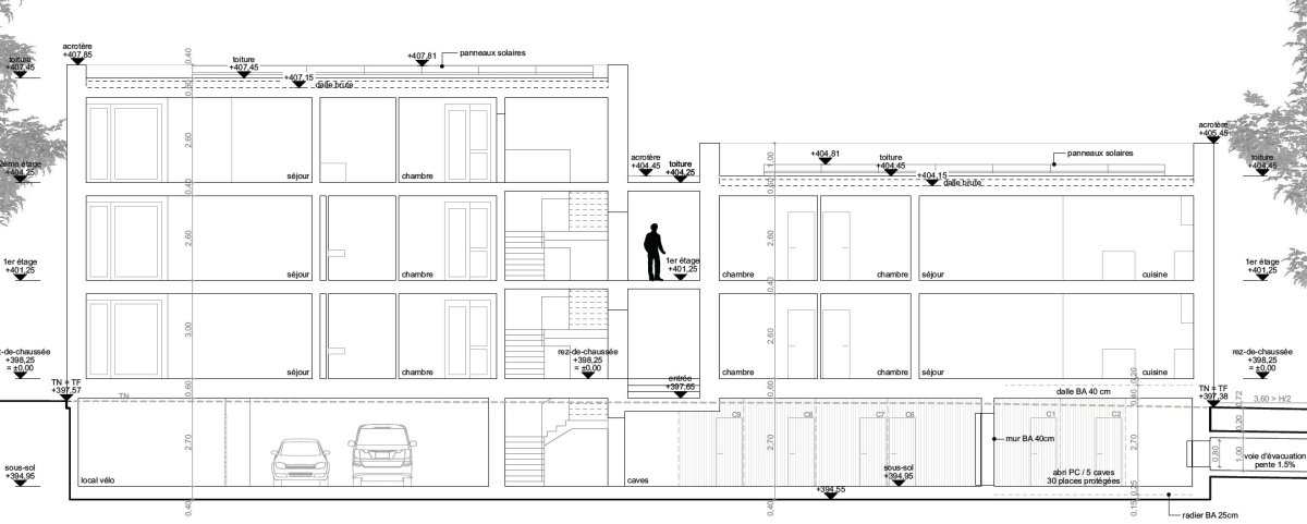
Immeuble d'habitation THPE - Genthod (GE)
Maître d'Ouvrage : Privé
Type programme : Logement
Type marché : Privé
Type construction : Murs et façades porteuses en pierre massive, plancher et toiture en solivage bois-béton connecté
Période projet : 2025 - 2028
Livraison prévue : Courant 2028
Prestations : Prestations de l'ingénieur bois pour la structure porteuse (A)
Architecte : Corpus Architectes
Ingénieur civil : Perreten & Milleret SA
Ingénieur civil bois : élément 6 ingénieurs conseilsType programme : Logement
Type marché : Privé
Type construction : Murs et façades porteuses en pierre massive, plancher et toiture en solivage bois-béton connecté
Période projet : 2025 - 2028
Livraison prévue : Courant 2028
Prestations : Prestations de l'ingénieur bois pour la structure porteuse (A)
Crédit photos et plans : Corpus Architectes
