
EMS Le Vénoge - Eclépens (VD)
Maître d'Ouvrage : Fondation EMS la Venoge
Type programme : EMS, logements, santé.
Type marché : Public
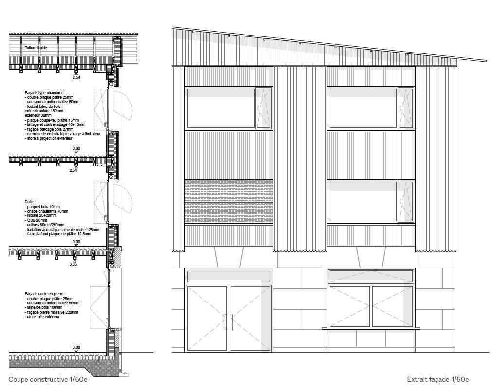
Type construction : Construction en structure bois (poteaux-poutres), planchers bois et béton connecté, ossature bois porteuse en façade reposant sur un socle en pierres de taille massives. Coursives bois couvertes.
SP : 4500 m²
Livraison prévue : Courant 2030
Architecte : Archiplein Sàrl
Ingénieur civil : Perreten & Milleret SA
Ingénieur civil bois : élément 6 ingénieurs conseilsType programme : EMS, logements, santé.
Type marché : Public
Type construction : Construction en structure bois (poteaux-poutres), planchers bois et béton connecté, ossature bois porteuse en façade reposant sur un socle en pierres de taille massives. Coursives bois couvertes.
SP : 4500 m²
Montant global de l'opération : 24,2 MCHF HT
Démarche environnementale : Minergie A ECO
Période projet : 2024 - 2029Livraison prévue : Courant 2030
Prestations : Ensemble des prestations de l’ingénieur bois (A, B et C)
- Structures porteuses bois
- Conception façades bois
Crédit photos et plans : Atelier Archiplein
