
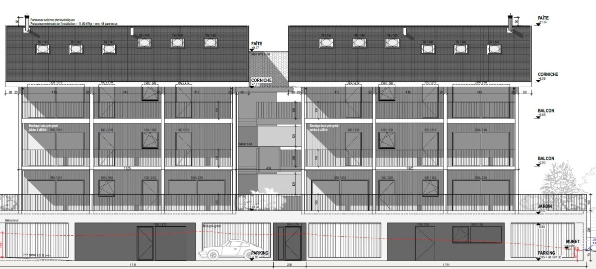
8 Logements - Le Mont sur Lausanne (VD)
Maître d'Ouvrage : Privé
Architecte : Atelier Pat architectes SA
Ingénieur civil bois : élément 6 ingénieurs conseils
Type programme : Résidentiel
Type marché : Privé
Type construction : Charpente chevronnage sur poteau-poutre BLC + combles en panneau BLC et balcons en poteau-poutre douglas
SP : 880 m²
Livraison prévue : Courant 2026
Prestations : Structures porteuses bois en BLC pour charpente et combles • Conception des façades en bardage bois • Conception des balcons • Conception détails assemblage • Conception des détails d’étanchéité
Architecte : Atelier Pat architectes SA
Ingénieur civil bois : élément 6 ingénieurs conseils
Type programme : Résidentiel
Type marché : Privé
Type construction : Charpente chevronnage sur poteau-poutre BLC + combles en panneau BLC et balcons en poteau-poutre douglas
SP : 880 m²
Montant CFC 214 : 400 kCHF HT
Période projet : 2025 - 2026Livraison prévue : Courant 2026
Prestations : Structures porteuses bois en BLC pour charpente et combles • Conception des façades en bardage bois • Conception des balcons • Conception détails assemblage • Conception des détails d’étanchéité
